... Aller au contenu principal

Signature Horizon Design 165

Un modèle de maison qui allie confort et modernité.

413 000 €

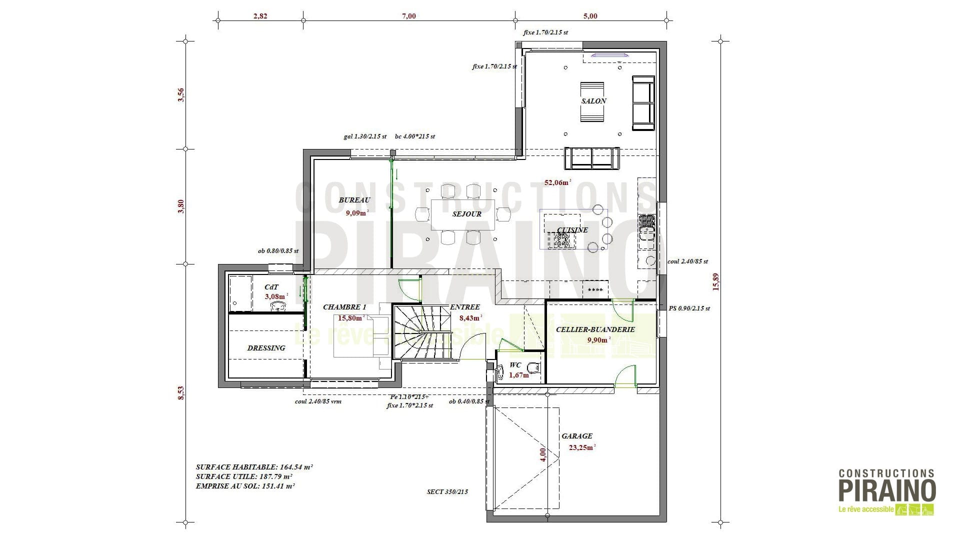
165 m2
6 ch
4 pièces

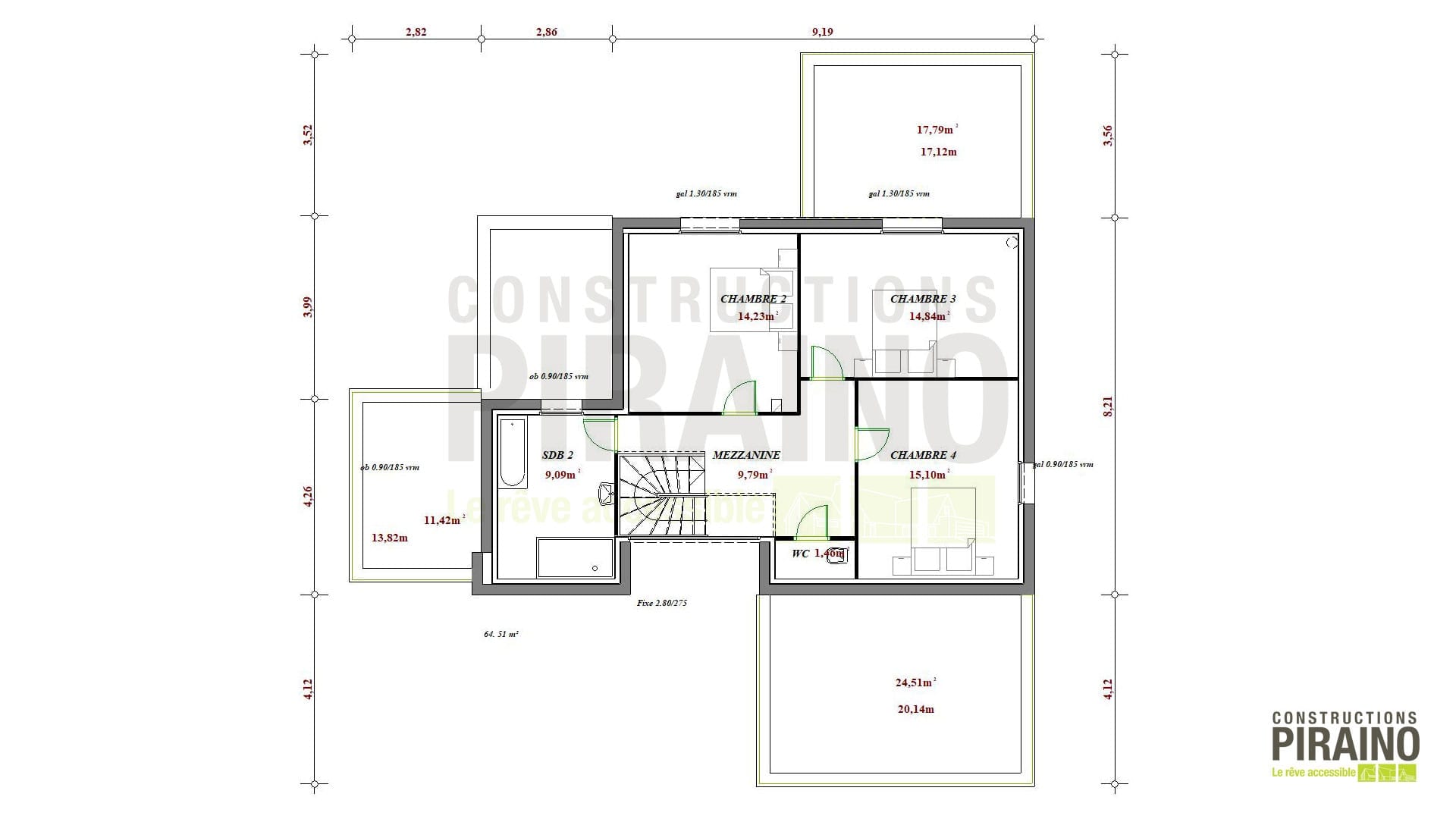
Le niveau supérieur est conçu comme un véritable domaine privé, offrant des volumes généreux et une organisation fluide pour toute la famille :

  • Trois chambres spacieuses : Cet étage accueille trois très belles chambres, avec des surfaces allant de 14,23 m² à plus de 15 m² (15,10 m²), garantissant un confort optimal pour chaque occupant.

  • Mezzanine et distribution : L’espace s’organise autour d’une mezzanine lumineuse de 9,79 m², idéale pour un coin lecture ou un petit bureau d’étage.

  • Confort complet : Le plateau est complété par une grande salle de bain de 9,09 m² et un WC indépendant, assurant une parfaite autonomie au niveau supérieur.

Un aménagement à l’étage qui privilégie la clarté et l’indépendance pour une vie de famille épanouie.

LE BONHEUR, ÇA SE CONSTRUIT, ÉCHANGEONS SUR VOTRE PROJET DE MAISON 

Prendre un rendez-vous

SIMULATION DE FINANCEMENT*

*Simulation sans terrain, hors frais de notaire, hors frais de raccordement. À titre indicatif, voir conditions auprès de nos conseillers.

Calculer mes mensualités
0 / mois

20 % du prix total recommandé.

Découvrez nos autres modèles PIRAINO signature

Signature

Signature Evidence 172

A partir de 378 000 €

La maison parfaite pour donner vie à vos projets et à vos souvenirs.

172 m²
5 ch
6 pièces
En savoir plus
Signature

Signature Essence 200

A partir de 443 000 €

Un espace de vie conçu pour allier confort et convivialité.

200 m²
3 ch
4 pièces
En savoir plus
Signature

Signature Ligne 156

A partir de 387 000 €

La maison qui donne vie à vos envies d’espace et de lumière.

156 m²
3 ch
5 pièces
En savoir plus
Signature

Signature Longitude 190

A partir de 448 000 €

La maison parfaite pour voir grandir vos projets.

190 m²
4 ch
7 pièces
En savoir plus
Signature

Signature Verticale 171

A partir de 418 000 €

La maison idéale pour bâtir vos projets d’avenir.

171 m²
4 ch
6 pièces
En savoir plus