Choisir le constructeur de votre maison est un acte important. Nous voulons en faire un engagement qui aille dans les deux sens et nous investir tout autant que vous dans la construction de votre rêve. Notre objectif est donc de vous conforter dans l’idée que vous pouvez tout nous demander : une maison inspirée des belles demeures d’antan, un style résolument moderne ou les deux à la fois. Nous prenons en compte la dimension subjective tout en considérant les impératifs techniques et financiers.
                                                
                                        
                                
                            
                            
                            
                            Fluidité et élégance. Ces termes décrivent parfaitement l'esprit de cette construction remarquable de plain-pied. Imaginée et construite selon les aspirations des propriétaires, elle répond à l'ensemble des critères d'une villa familiale de haut standing. Baignée de lumière, elle s'épanouit dans la longueur offrant à chacun l'espace dont il a besoin.
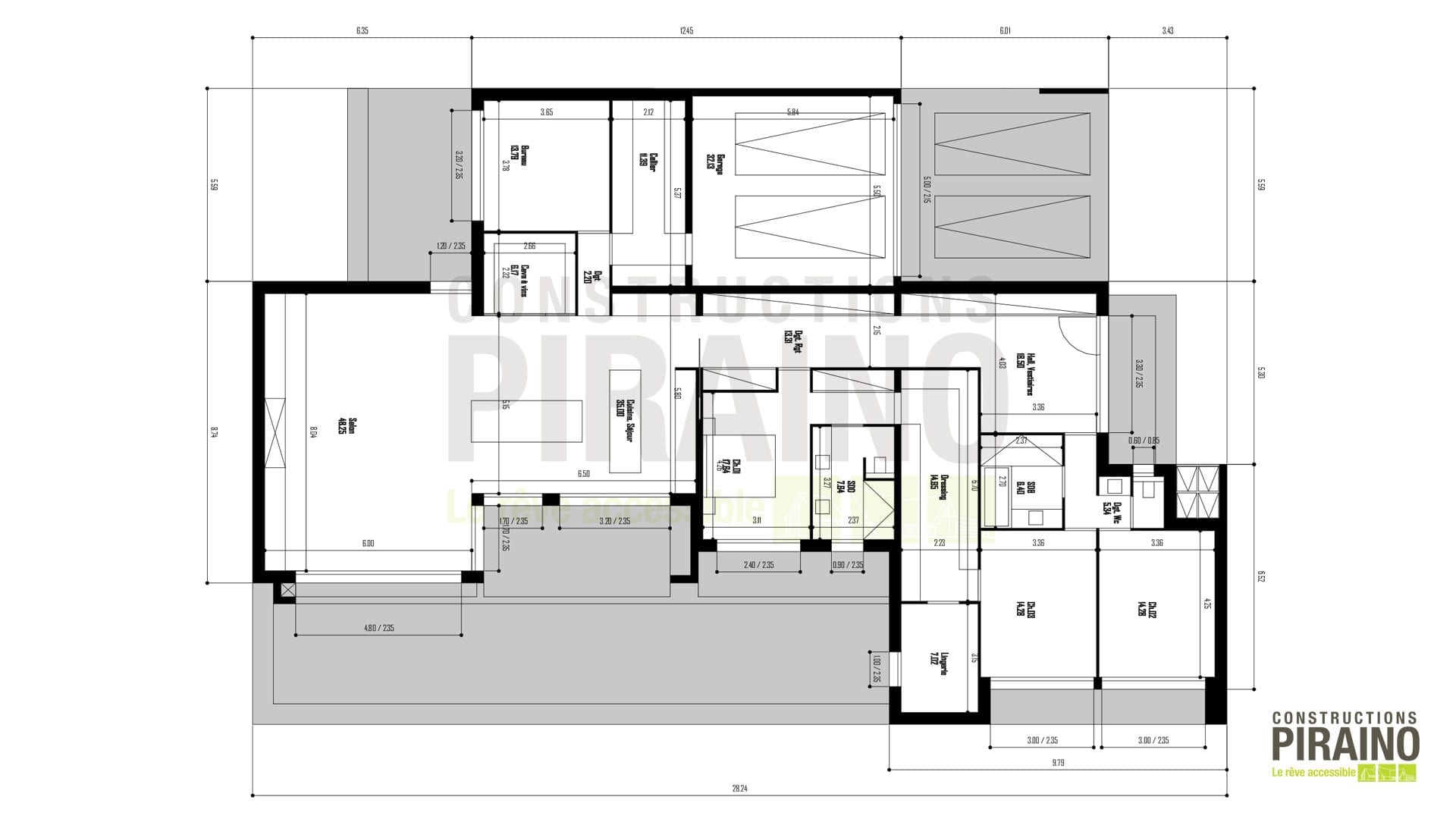
Cette villa de plain-pied d’une surface habitable de 233 m² est l’illustration parfaite du savoir-faire Constructions Piraino. Visible à Sainte Catherine dans les Hauts de France, elle met en scène une vision originale et dynamique de l’architecture contemporaine. Sa façade extérieure mixe des matériaux innovants se fondant dans son environnement et donnant un ensemble cohérent. La silhouette arrière de la maison présente de larges baies vitrées offrant une vue imprenable sur la terrasse extérieure. Au rez-de-chaussée, l’habitation se délimite en 3 zones.
L’espace nuit se compose de deux grandes chambres, d’un dressing et d’une laverie, tandis que la suite parentale dispose d’une salle d’eau. La cuisine et le salon-séjour s’étendent sur 85 m². Le bureau et le cellier sont accolés à la cave à vin et au garage de 32 m².